Location Bureau 468 m² à Gauthier, Casablanca – Milkiya
84 000 MAD

Property size icon Taille de la propriété: 468
Property accommodation icon Hébergement: Sans meubles
Property heating icon statut: Libre

Location Bureau 468 m² à Gauthier, Casablanca

À louer
Gauthier
9 novembre 2025
984
Référence ID: LO202509118081
Description

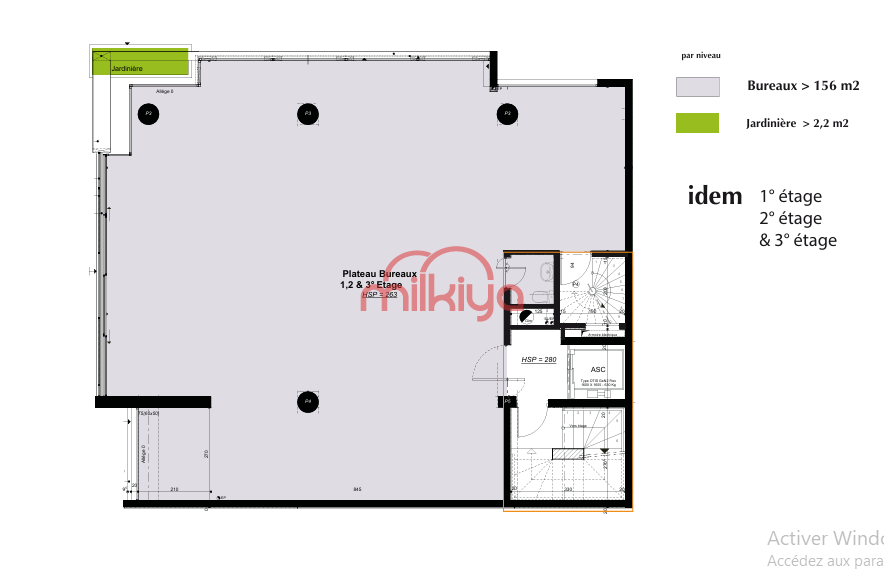
Je mets en location un magnifique plateau de bureaux de 468 m² réparti sur 3 étages, dans un immeuble de bureaux de haut standing idéalement situé dans une rue calme en plein cœur de l’hypercentre de Casablanca.

L’immeuble se compose de 6 étages regroupant une surface utile de 800m2, 78m2 de terrasses et 57m2 de jardins et 132m2 pour les parties communes.
Il est construit selon les normes internationales, entièrement sécurisé, basse consommation et parasismique.

Il dispose d’un parking de 8-10 places.

N’hésitez plus ! Contactez moi pour visiter ce plateau bureau ou pour en savoir plus.

Spécifications
Property size icon Superficie: 468m²
Property total floors icon Total des étages: 6
Property heating icon Disponibilité: Libre
Property accommodation icon Hébergement: Sans meubles
Property construction orientation icon Orientation: Sud Ouest
Caractéristiques
Ascenseur
Balcon
Cave
Garage
Gardien
Interphone
Meublé
Parking Extérieur
Parking Sous-sol
Salle d'eau
Terrasse
Vidéo de la propriété
You don't have permission to register
fr_FRFR_FR